Quickborn:
Großes 1356 m² Baugrundstück mit sanierungsfähigem Altbestand in Quickborn Heide. Neubau eines weiteren Hauses möglich !
Objekt-Nr.: 9309H4

Hausansicht 1

Hausansicht 2

Wohnbereich

Blick aus dem Wohnzimmer

Küche

Küche Ansicht 2

Schlafzimmer

Schlafzimmer

Dachbodenbereich 1

Badezimmer Ansicht 1

Badezimmer Ansicht 2

Garage

Garage

Grundstück

Zufahrt

Blick zur Grundstückszufahrt

Grundstück

Grundstück

Hausansicht von oben

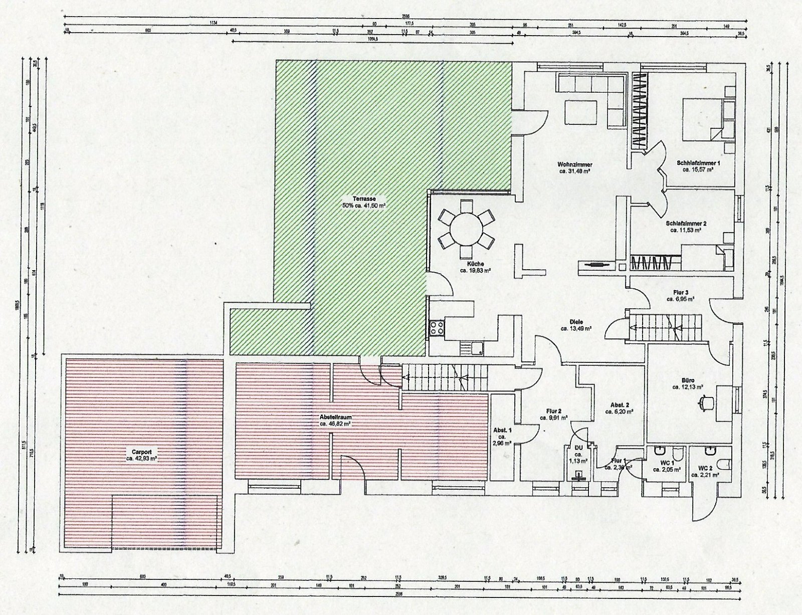
Grundriss Haus

Flurkarte bearbeitet





















Preis:
435.000 €
Wohnfläche ca.:
80 m²
Grundstück ca.:
1.356 m²
Zimmeranzahl:
2,5
Zum Verkauf steht ein in den 30 er Jahren erbautes Haus, welches 1971 erweitert und ausgebaut wurde, belegen auf einem ca. 1356 m² großen Grundstück. Das massiv erbaute Haus präsentiert sich in einem sanierungsbedürftigen Zustand. Erkennbare bauliche Mängel wie Feuchtigkeitsschäden oder Strukturschäden sind nicht vorhanden. Der Anfang der 70 er Jahre erbaute Dachstuhl ist gedämmt. Die Gaszentralheizung ist aus dem Jahre 2008.
Die Wohnfläche von ca. 80 m² verteilt sich auf das große Wohnzimmer, ein Schlafzimmer, ein Durchgangszimmer, den Flurbereich das Duschbad und die Küche. Im Dachbodenbereich, der zur Wohnfläche nicht dazugezählt wurde, befinden sich mehrere abgeteilte Zimmer, die als Wohnräume genutzt werden können. Hier befindet sich zudem auch ein WC.
Neben dem Haus befindet sich die Garage mit einem zusätzlichen Abstellraum und Zugang zum hinteren Grundstück.…
Das eingewachsene Grundstück ist ca. 20 m breit und ca. 69 m tief. Im vorderen Bereich des Grundstücks ist der Neubau eines weiteren Hauses möglich. Dazu liegen uns bereits Planungen unserer Kooperationspartner vor, die wir Ihnen gerne zur Verfügung stellen können.
Die Immobilie eignet sich perfekt für Immobiliensuchende, die Spaß an handwerklicher Arbeit haben und zudem erkennen, dass die in die Immobilie gesteckten Sanierungsmaßnahmen nach Fertigstellung einen erheblichen Mehrwert der Immobilie bewirken, der die Gesamtinvestition übersteigt. Zudem eignet sich das Anwesen zur Verwirklichung eines Zweigenerationenprojekts.
Haustyp: Einfamilienhaus
Etagenanzahl: 1
Provisionspflichtig: ja
Provision: 2,5 % inkl. gesetzl. MwSt.
Nutzfläche ca.: 150 m²
Küche: Einbauküche
Bad: Dusche
Anzahl Schlafzimmer: 1
Anzahl Badezimmer: 1
Terrasse: 1
Gäste-WC: ja
Garten: ja
Dachboden: ja
Keller: teil unterkellert
Umgebung: Einkaufsmöglichkeit, Grundschule, ruhige Gegend, weiterführende Schule, Wohngegend
Anzahl der Parkflächen: 1 x Garage
Möbliert: nein
Letzte Modernisierung/ Sanierung: 2008
Qualität der Ausstattung: normal
Baujahr: 1955
Bauphase: Haus fertig gestellt
Verfügbar ab: Nach Vereinbarung
Bodenbelag: Dielen, Parkett
Zustand: sanierungsbedürftig
Heizung: Zentralheizung
Befeuerungsart: Gas
Energieausweistyp: Bedarfsausweis - gültig vom 07.08.2023 bis 07.08.2033
Energieeffizienz-Klasse: H
Baujahr laut Energieausweis: 1971
Der Makler-Vertrag mit uns kommt durch die Bestätigung der Inanspruchnahme unserer Maklertätigkeit in Textform zustande, wie z.B. insbesondere die Unterschrift des Suchkundenvertrages und/oder des Objekt-Exposés. Die Höhe der Courtage richtet sich nach den ab dem 23.12.2020 in Kraft getretenen gesetzlichen Regelungen zur Teilung der Maklercourtage. Hiernach wird die Courtage für beide Parteien (Eigentümer und Käufer) in Höhe von insgesamt 2,5 % des Kaufpreises einschließlich Umsatzsteuer bei notariellem Vertragsabschluss verdient und fällig. Die Höhe der Bruttocourtage unterliegt einer Anpassung bei Steuersatzänderung. Grunderwerbsteuer, Notar- und Gerichtskosten trägt der Käufer.
Die von uns gemachten Informationen beruhen auf Angaben des Verkäufers bzw. der Verkäuferin. Für die Richtigkeit und Vollständigkeit der Angaben kann keine Gewähr bzw. Haftung übernommen werden. Ein Zwischenverkauf und Irrtümer sind vorbehalten.
Wir verweisen auf unsere Allgemeinen Geschäftsbedingungen. Durch die weitere Nutzung unserer Dienstleistung erklären Sie die Kenntnisnahme und Ihr Einverständnis unserer Allgemeinen Geschäftsbedingungen.
Das könnte Ihnen auch gefallen
Negelein Real Estate
Herr Robert Negelein
Meister-Francke-Straße11a
22309 Hamburg
Telefon: +49 40 20008028
Mobil: +49 1517 5986592
Fax: +49 40 20008033


























































































