Schenefeld:
Provisionsfrei für den Käufer / Erfüllen Sie sich Ihren Wohntraum.
Objekt-Nr.: 9324/ba1

Ansicht 1

Ansicht 2

Ansicht 3

Ansicht 4

Ansicht 5

Ansicht 6

Einfahrtsbereich

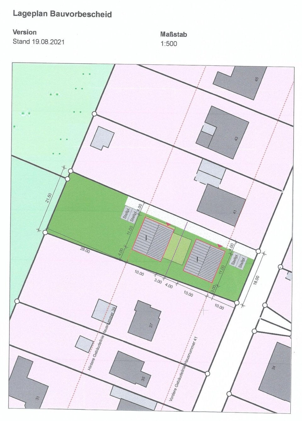
Liegenschaftskarte

Projektierungsbeispiel









Grundstück ca.:
680 m²
Preis:
380.000 €
Ergreifen Sie diese hervorragende Gelegenheit ein wunderschönes Baugrundstück in bester Lage von Schenefeld zu erwerben und dazu noch weit unter dem aktuell errechneten Bodenrichtwert.
Sie suchen einen Bauplatz für ein schönes Ein- oder Zweifamilienhaus in ruhiger und zentraler Lage? Sie wollen niedrige Energiekosten? Sie wollen nach einem langen Arbeitstag in die eigenen 4 Wände zurückkehren und sich auf Ihrem großen Grundstück entspannen und mit Ihren Kindern spielen? Dann sind Sie hier fündig geworden!
Das nach Süden ausgerichtete Baugrundstück hat eine Größe von 680 m² und ist mit einer Breite von ca. 25 m und einer Tiefe von ca. 24 m perfekt dafür geeignet ein großes Einfamilienhaus zu bauen.
Die Bebauung richtet sich nach den Vorgaben des Bebauungsplans Nr. 68 Krokusweg. Geplant werden können Einfamilienhäuser in offener Bauweise mit maximal 2 Wohneinheiten. Der Bebauungsplan bestimmt zudem eine Grundflächenzahl von 0,2 und eine Firsthöhe von 9 Meter als Höchstmaß. Die Abstandsflächen von 3 Meter sind einzuhalten.
Exakte Auskünfte über individuelle Planungsvorhaben erteilt das Bauamt Schenefeld. Projektierungen unserer Kooperationspartner liegen bereits vor und können zur Verfügung gestellt werden. Eine Baubindung besteht nicht.
Nutzungsart: Wohnen
Erschliessung: ortsüblich erschlossen
Bebaubar nach: Bebauung nach Bebauungsplan
Empfohlene Nutzung: Einfamilienhaus
GRZ: 0,20
Verfügbar ab: Nach Vereinbarung
Umgebung: Einkaufsmöglichkeit, Grundschule, Kindergarten, ruhige Gegend, weiterführende Schule, Wohngegend
Provisionspflichtig: nein
Provision: Provisionsfrei für den Käufer
Der Erwerb dieses Baugrundstücks ist für den Käufer provisionsfrei.
Die von uns gemachten Informationen beruhen auf Angaben des Verkäufers bzw. der Verkäuferin. Für die Richtigkeit und Vollständigkeit der Angaben kann keine Gewähr bzw. Haftung übernommen werden. Ein Zwischenverkauf und Irrtümer sind vorbehalten.
Wir verweisen auf unsere Allgemeinen Geschäftsbedingungen. Durch die weitere Nutzung unserer Dienstleistung erklären Sie die Kenntnisnahme und Ihr Einverständnis unserer Allgemeinen Geschäftsbedingungen.
Das könnte Ihnen auch gefallen
Negelein Real Estate
Herr Robert Negelein
Meister-Francke-Straße11a
22309 Hamburg
Telefon: +49 40 20008028
Mobil: +49 1517 5986592
Fax: +49 40 20008033



























